该项目旨在“动态保存”自 20 世纪 60 年代以来就存在的“区域食品中心”。建筑师着重考虑如何将每家店铺视为独立的个体,并力求创造一个既能容纳各个个体又能彼此共存的整体。他们构思了一种建筑风格,将独立住宅大小的建筑体量聚集在一个巨型结构中。

© Eichi Tano

© Eichi Tano
01持续“发酵”的建筑

这是一个针对新横滨食品中心的“动态保存”项目,该中心由建筑师的祖父于 1967 年建造。1964 年新干线新横滨站开通后不久,祖父除了务农之外,还开始从事房地产开发,为迁居至此的人们提供生活保障。为了确保商贩无需为生计担忧,他建造了新横滨食品中心,这是一个当地的食品集散地,汇集了肉铺、蔬菜水果店、奶制品店等小型商户,租户则居住在二楼。

切割前建筑原状 © Eichi Tano

切割后 © Eichi Tano

原建筑切口 © Eichi Tano
从那时起,尽管商户几经更迭,但食品中心至今仍保持着最初的模样。在规划之初,建筑师曾考虑过因建筑年代久远而重建整栋建筑的可能性,但为了保障现有鳗鱼餐厅和蔬果店的正常运营,最终采取了循序渐进的改造方案:缩小规模 → 新建 → 店铺搬迁 → 翻新。这一系列步骤类似于“发酵”的概念,而“发酵”与食物密不可分。
建筑师并非要彻底翻新整栋建筑,而是希望逐步对其进行改造,使店铺能够继续营业,并融入当地社区。虽然建筑本身的形态会发生变化,但它仍将作为“新横滨食品中心”得到动态的保留,建筑师称之为“发酵”建筑。

© Eichi Tano

© Eichi Tano
02差异化共存的群体

“新横滨食品中心”原名鲜为人知,当地居民只知道每家店铺都叫“卖蔬菜水果的那家”。他们也看到每家商户都摆放着商品,竖起招牌,摆放着植物,把空地都占满了。设计目标是在此现有结构的基础上进行发展,创造一种既能使独立个体共存又能形成整体的建筑。
人工地面位于三楼,整个巨型结构由八根 500 毫米见方的柱子支撑,一楼位于地面上,三楼位于人工地面上,二楼则悬空于地面之上。该项目位于新横滨的都市尺度与筱原町山谷地貌的人性尺度交汇的 1 型住宅区。建筑本身也融合了这两种尺度。庞大的城市结构如同屹立不倒的树干,周围环绕着由两层木屋大小的小直径构件构成的体量。

改造过程中的钢结构 © Eichi Tano

改造过程中的钢结构 © Eichi Tano

顶层改造过程中的钢木结构 © Eichi Tano
这座巨型结构实现了上下空间的连续性,营造出流畅的平面布局,同时,500 毫米见方和 50 毫米见方的立柱并排而立,形成鲜明的对比。此外,悬空结构摆脱了二层楼层标高的限制,平坦的公共走廊以韵律感的方式排列,部分区域高出 400 毫米米,部分区域低 200 毫米。通过据此确定一层屋顶的坡度,从而为一层和二层打造出分段式的立面。

© Eichi Tano

© Eichi Tano

© Eichi Tano

© Eichi Tano
03独立又相连的个体

通过将一层设置为三间商铺,二层设置为两间商铺和三套复式商住两用单元,三层设置为一间独立住宅和一间商住两用单元,不同楼层之间的关系既保持了松散的联系,又不显得突兀。另一方面,各层独立的商铺和住宅以完全不同的平面布局相互交叠,不仅在它们之间形成了类似巷道的缝隙,也构建了一个复杂的空间序列。而通过扩展建筑面积,可以向各个方向开启的开口,正是实现这一效果的关键因素。

© Eichi Tano

© Eichi Tano

© Eichi Tano

© Eichi Tano
一层设有贯穿店铺并通往南侧庭院、相邻店铺及现有建筑的交通动线;二层亦设有交通动线,通过店铺与住宅之间的缝隙,将周围景观分割开来。三层的四套住宅并排建于人工地面之上,彼此间留有空隙,私人阳台延伸出一个公共区域,并与一条类似巷道的通道相连。该区域没有明显的隔断,住户之间的距离感营造出一种开放的公共氛围。

© Eichi Tano

© Eichi Tano

© Eichi Tano
二楼入口之间的高差体现了设计理念,即在不刻意强调商业性的前提下,营造日常生活空间的延伸感。此外,通过错开相邻入口的位置,使其不直接相对,并改变高度关系,可以保持商店与公共区域之间适当的距离。

© Eichi Tano

© Eichi Tano

© Eichi Tano

© Eichi Tano
三楼的住宅也采用了类似的设计,平层房间和错层房间交替排列,相邻住宅的卧室楼层错开。这种设计营造出两种不同的格局:一种是空间宽敞的住宅,另一种是楼层组合的三维立体空间,同时通过调整或倾斜窗户的位置来控制巷道内的视线。虽然每家店铺和住宅都各自独立,但彼此之间通过非正式的路径连接,形成一种微妙的联系。这种距离感隐喻了筱原地区山谷地形所造就的乡土风貌——高低落差显著,狭窄通道众多——而建筑本身则如同一座山丘,浓缩了筱原的地形特征。

© Eichi Tano

© Eichi Tano

© Eichi Tano
04“过度表达”的人性化

通过将连接二楼至三楼的楼梯(通往三套复式公寓)以及环绕构成巨型结构的主梁的室外楼梯设置于建筑内部,打破了人工地面造成的上下楼层之间的隔阂。巨型结构本身根据其位置和环境采用不同的饰面材料,包括防火涂料、防火覆盖层、硅酸钙板和钢筋石膏板。与其将巨型结构纯粹地表现为一种结构表现主义,不如将其视为构建独立个体共存空间的一种手段,以此释放空间中的张力。

© Eichi Tano

© Eichi Tano

© Eichi Tano
这种改造随处可见。建筑外墙采用镀锌波纹钢板,但由于缺少龙骨条,为了加厚木结构而拆除了木框架,导致表面呈现出一种奇特的纹理,无数紧固件以一定角度钉入建筑,其间距必然取决于施工宽度。利用这种隐形的网格结构,螺丝被用来安装标牌、公告栏和公寓门牌。此外,室内外扶手和楼梯均采用变形钢筋和花纹钢板,并使用镀锌钢管通过夹具固定,最终形成接缝外露的混凝土饰面。公寓内部也采用了这种设计,所有固定在钢筋石膏板和柳桉胶合板上的螺丝都清晰可见。

© Eichi Tano

© Eichi Tano
同时创造和解构形式,偏离通常应隐藏的材料和细节,并将表面分割到非同寻常的程度,建筑师将这些行为称为“过度表达”。它勾勒出辅助性的线条,唤起居民和用户的主观感受。通过分割空间,它增加了路径的数量,从而带来更具身体性、更多样化、更具参与性的体验。能够看到手作的痕迹,会让人觉得后续可以继续做出改变。这还关乎如何营造人性化的尺度。尺度越大,建筑就越脱离人的掌控,成为超越人类尺度的社会实体。这是一种避免沦为商业建筑,最终打造一系列人们可以彼此相见的空间的方式。

© Eichi Tano

© Eichi Tano

© Eichi Tano

© Eichi Tano
05新建与现有建筑并存

为了缩小建筑规模,设计团队决定将土地分割成若干地块,从而将现有建筑和新建建筑分隔开来。地块分割的前提是,新建筑的体量能够与现有建筑相仿,并且其造型设计旨在与现有建筑融为一体,避免两者之间产生明显的界限。靠近现有建筑的商住两用部分,其二层设有一个开口,可以俯瞰现有建筑和新建建筑的横截面;而三层则因地块分割带来的坡度限制而被截断,形成了一个类似隧道的空间。

© Eichi Tano

© Eichi Tano

© Eichi Tano
由于规模缩减,相邻的现有建筑被一分为二,计划对其内部进行翻新,同时保留其外观。乍看之下,新建筑与现有部分截然不同,但两者之间却通过相互交织的元素紧密相连,例如保留了木屋的尺度,使用了诸如用镀铝锌波纹钢板代替锡板等材料,北侧干货店面与南侧湿润的东南亚风格形成对比,以及一些别具匠心的细节处理,还有将瓦片屋顶改为碎石屋顶。此外,三楼的蓝色线条与现有建筑的屋檐相呼应,使现有建筑的景观更具立体感,其独特的租户排列在屋檐上。

© Eichi Tano

© Eichi Tano

© Eichi Tano

© Eichi Tano

剖透视图 © Umineko Archi
06LDK = 社区餐饮厨房

LDK (起居室 Living Room、餐厅 Dining Room、厨房 Kitchen)设计源于日本土地资源有限、住宅面积较小的国情,通过打破隔墙实现空间通透感。在该项目中,这三种空间被结合在一起作为社区餐饮厨房。一楼、二楼和屋顶露台是可供日常用餐的空间,不仅供大楼住户和商户使用,也供附近居民使用。人们可以从商店外带食物,在露台上享用午餐,附近的老年人也可以自带饭菜来这里用餐。未来,随着现有建筑改造中公共厨房和户外厨房的增多,除了家庭和商店等场所的私人厨房外,还会涌现出类似近代早期饮水机的类似空间。社区内拥有更多样化的烹饪和用餐场所选择是一件好事。

© Eichi Tano

© Eichi Tano

© Eichi Tano
随着现代化进程导致核心家庭的兴起,厨房和餐桌逐渐分离,彼此隔绝,但其理念在于创造一种新的共享空间。其目标是通过“发酵”式的建筑来构建本地饮食景观,这与藤原辰文倡导的“缘食”(enshoku)理念不谋而合。

© Eichi Tano

© Eichi Tano
07弥合建造与使用之间的差距

Umineko Archi 不仅负责设计,还负责商业规划、租户和住房的房地产经纪以及设施管理。
该商业计划书提出,将新建建筑与现有建筑翻新捆绑在一起,以此向银行申请贷款。从业务规模或收入角度来看,重建整栋建筑不可行,但保留一半建筑同时对另一半进行翻新,公司既能提高盈利能力,又能控制预算。在当今建筑成本持续上涨的社会,这种商业模式将变得越来越重要。

分层轴测图 © Umineko Archi

渐进式更新图解 © Umineko Archi
以系列项目的形式开展这些工作,旨在确保理想不会沦为空洞的理论,这是创造理想空间的重要实践,也是理解用户心理的挑战。建筑师将办公室也设置于此,设计师们将在精心打造空间的同时,工作生活于此。
一座建筑并非在竣工时就结束了,而是在使用过程中才真正焕发生机。而且,建筑的性质也深受参与其中的人们的影响。在为社区创造空间时,设计空间的用途与建造建筑本身同样重要。

建筑模型 © Umineko Archi

© Eichi Tano


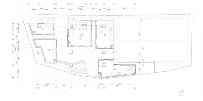
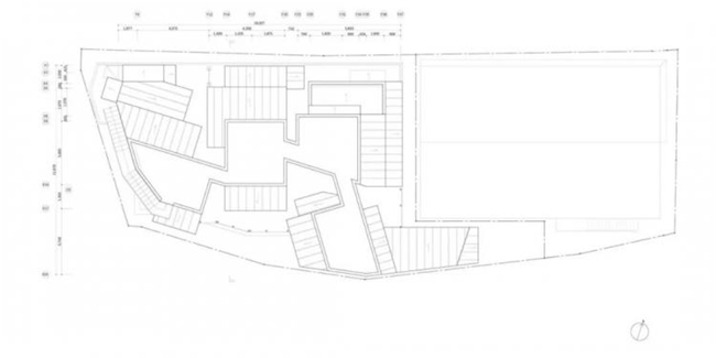
一层平面图 © Umineko Archi

二层平面图 © Umineko Archi

三层平面图 © Umineko Archi

三层夹层平面图 © Umineko Archi

屋顶层平面图 © Umineko Archi

建筑模型 © Umineko Archi

建筑模型 © Umineko Archi

建筑模型 © Umineko Archi

建筑设计:Umineko Archi
项目地址:神奈川県横浜市港北区篠原町2803-3
项目年份:2025
建筑面积:367.06 ㎡
主持建筑师:若林拓哉,石毛龍,伊藤祐介 ( Umineko Archi)
项目策划 / 不动产 / 运营管理:Umineko Archi
结构设计:金田泰裕,青山健太,木村友美(yasuhirokaneda STRUCTURE)
景观设计:吉田葵,高石竜介 (AOI LANDSCAPE DESIGN)
设施设备:高橋良輔 (NoMaDoS)
地产支持:野々垣賢人(kintsugi)
施工:中田隆,松尾健太郎 (関口工務店)
给排水 / 暖通:小林伸彦,岡部憲嗣 (小林設備工業)
电气:高橋敏,井上宏之 (高橋電気工業所)
燃气:鳴海真次,梅沢賢 (UNITED ENGINEERING)
钢结构施工:矢田部元嗣,滝沢公雄 (矢田部鉄工所)
屋顶外墙施工:佐藤真,佐藤伶音 (斉藤興業)
金属构件加工 / 玻璃安装:飯塚浩司,内野喜晴 (老川工業)
防水工程:桜井弘樹,濱野景司 (MOTIV)
室内装修:有留辰男,有留公哉 (有留内装)
室内木结构:新井章友(新井建具)
涂装工程:日下部修一,豊島兼好 (日下部塗装店)
室内地面施工:鈴木治,佐伯昌弘 (INTERIOR 鈴木)
住宅设备机电工程:高橋和海,横山聖水 (奥山管材機器)
金属加工:森田和雄 (森鉄工業)
外部工程:小池勇二 (鳶小池工業)
防火工程:川上敦之,打込伸一 (東成)
导视设计:Wani Design
插画:Isuna Design
摄影师:Eichi Tano