
独立与共享:三代家庭住宅标签:私密与公共、模糊性、共享、记忆重塑建筑设计:即作建筑建成年份:2019

建筑位于北京市的某一村落,村落中的民居多为1-2层的砖混结构合院式住宅。整体建筑的外部状态是坚实、厚重和私密的,暖棕色的砖与村子的肌理顺应;屋顶的坡度经过考量,减小对邻居建筑的压迫感。但建筑的形态并不是设计的主导,设计师希望住宅能够成为居住者过往记忆、当下感受和生活理想的延伸。
庭院是生活向自然溢出的部分, 也是自然向生活的渗透。 院墙高2米,是厚实的表皮,界定场域范围、保护内部隐私。前院、 中庭、 两个天井和若干边界庭院在表皮和内部空间之间渗透, 表皮也因此与建筑体量时而融合、时而剥离, 为室内空间创造更充分的开放机会,为在其中的生活提供通风、采光和四季流转的景观营造。
在这个住宅中,小家庭之间相互独立却又形成一个整体,边界看似模糊却又被清晰定义。设计师希望通过建筑设计,在维护小家庭的独立性格和家庭之间合理边界感的同时,营造尊重和共享的群居生活氛围,消解对立而产生积极的可能性,满足个体对于家族亲情的诉求,让家庭自然产生更多的凝聚力。



总平面图

一层平面图

二层平面图

屋顶平面图



剖面图

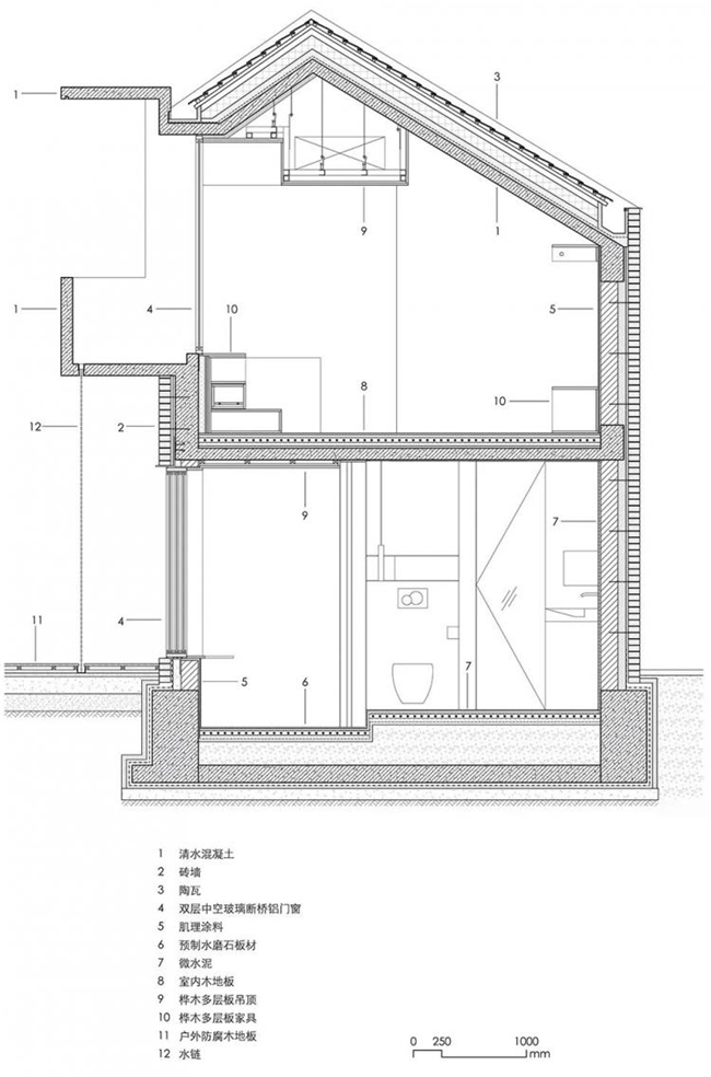
节点大样图

建筑外观

建筑外观

建筑外观

建筑外观

建筑庭院

建筑庭院

建筑庭院

建筑庭院

建筑庭院

建筑室内

建筑室内

建筑室内

建筑室内

建筑室内